- 金年会体育&jingytiddot;盛禧嘉园
-
信息来源:金年会体育集团
发布时间:2022-06-02
浏览次数:888 次
金年会体育·盛禧嘉园小区简介
金年会体育·盛禧嘉园项目位于东至县城南新区,东临沿河路,西临白笏路,南临官港路,由东至升金房地产开发有限公司开发、中国十七冶集团有限公司承建。
本项目规划用地面积74133㎡,约合111.2亩,总建筑面积165291㎡,容积率1.798,建筑密度20%,绿地率30%。规划建设3栋9层住宅楼、6栋15层住宅楼、4栋18层和4栋27层住宅楼,总户数982户,机动车停车位1000个,非机动车停车位1904个。6种户型面积从95㎡至230㎡不等。

金年会体育·盛禧嘉园鸟瞰图

金年会体育·盛禧嘉园总平面图

沿街透视图

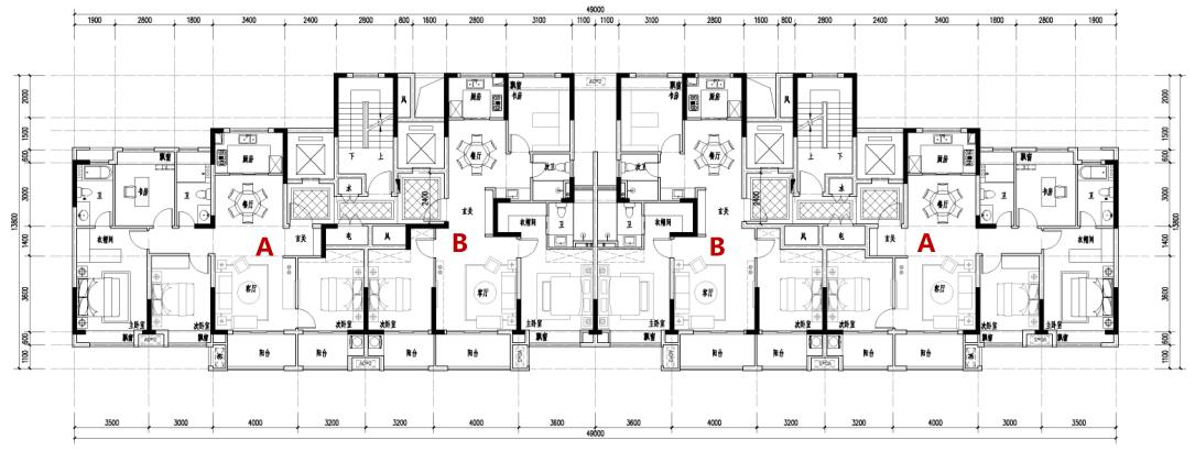
部分户型图:A:127㎡,三室两厅一厨两卫;B:95㎡,三室两厅一厨一卫

部分户型图:A:139㎡,四室两厅一厨两卫;B:127㎡,三室两厅一厨两卫

